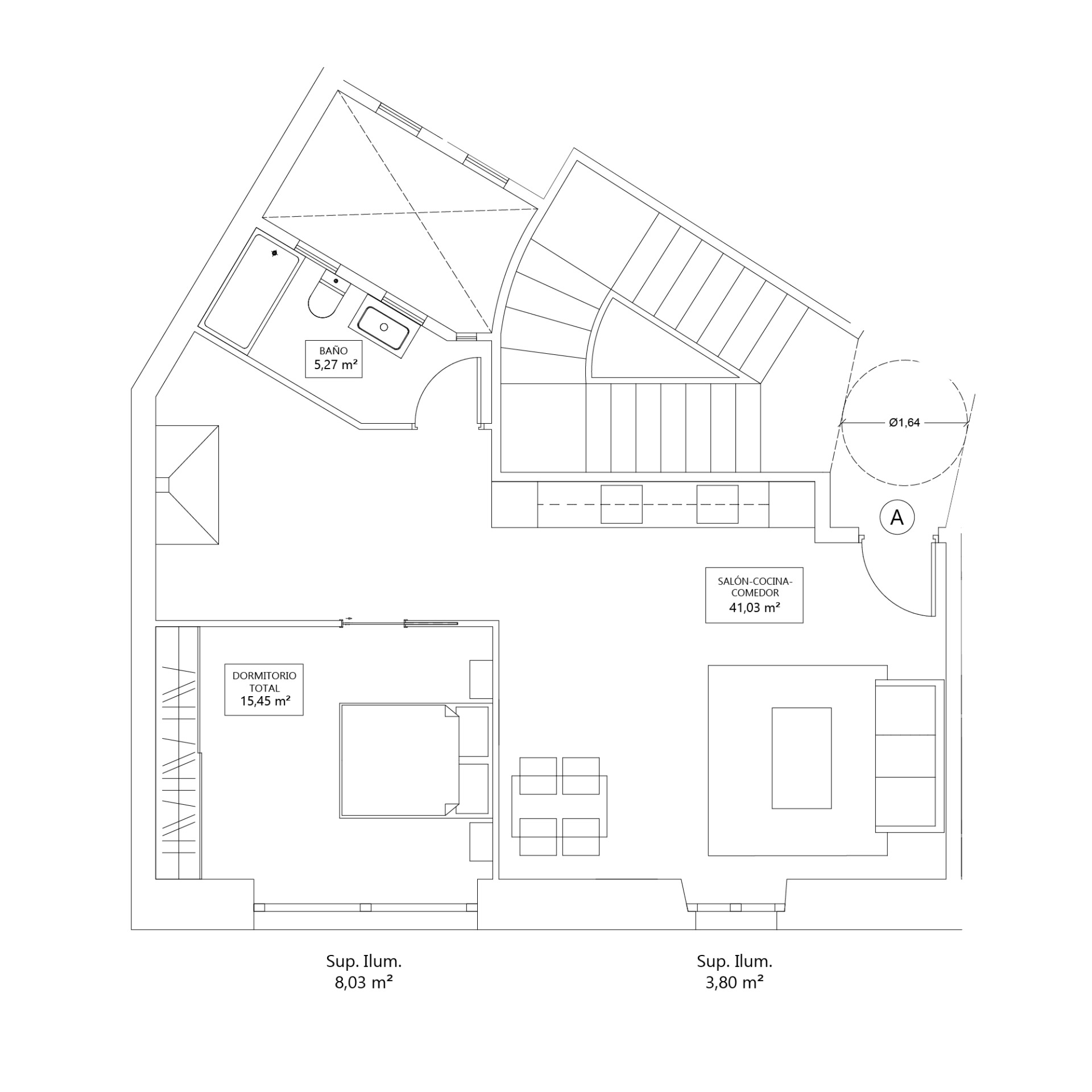
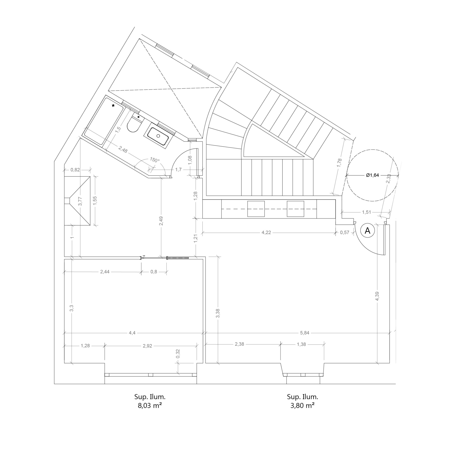
Apartamento en Calle Prim

Proyecto de diseño y decoración al detalle para un apartamento pequeño con estilo neoclásico moderno, con toques románticos y sofisticados, con el objetivo de crear un espacio elegante y acogedor que combine elementos clásicos con una estética contemporánea. Se concibió el proyecto desde el diseño, la generación de documentación técnica, el modelado 3d y el renderizado.

Proyectos relacionados